八王子市本町 未入居戸建 東京都八王子市本町|4,490万円の中古一戸建て|エイトホーム
| 価格 | 4,490万円 ![]() |
||||
|---|---|---|---|---|---|
| 所在地 | 東京都八王子市本町
この地域周辺の物件を見る |
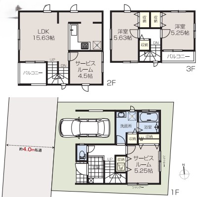
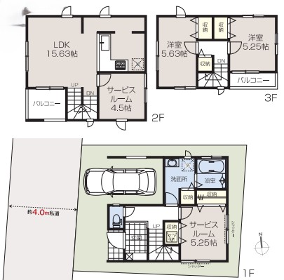
土地面積 | 69.81m² (21.11坪) | 建物面積 | 104.53m2 |
| 築年月 | 2024年5月築 | 間取り | 4LDK (-) | ||
| 交通 |
JR中央線 八王子 徒歩14分
|
||||
| 特徴 |
|
|---|---|
| セールスコメント | - |
| 採光面 | - | 構造/階数 | その他/-階建 |
|---|---|---|---|
| 建ぺい率 | -(%) | 容積率 | -(%) |
| 駐車場 | - | 現況/引渡し | -/- |
| 土地権利 | - | 私道負担面積 | - |
| 接道状況 | - | 用途地域 |
準工業地域
|
| セットバック | - | 法令上の制限 | - |
| 地目 | - | 地勢 | |
| 建築確認番号 | 都市計画 | - | |
| 取引態様 | 仲介 | ||
| 情報更新日 | 2026年04月24日 | 次回更新日 | 2026年05月08日 |
| 小学校区 | 八王子市立第一小学校 (東京都八王子市) この学区の他の物件を見る |
中学校区 | 第五中学校 (東京都八王子市) この学区の他の物件を見る |
|---|
| 価格 | 万円 | ||
|---|---|---|---|
| 年利率 | % |
||
| ボーナス払い | 返済年数 | ||
| 頭金 | 直接入力する | 万円 | |

毎月のご返済額 |
ボーナス(×年2回) |
物件価格4,490万円 |
![]() |
![]() |
八王子市本町
1500万円〜7249万円 |
-